Дизайн-проект в Москве: продуманное пространство с художественными акцентами.
Предварительная работа и удалённое проектирование Этот проект — отличный пример дальновидного подхода. Семейная пара с ребёнком заказала дизайн ещё до сдачи квартиры, что позволило оптимизировать сроки. Мы начали с планировочного решения, ориентируясь на чертежи застройщика (кстати, исполнение было настолько точным, что стены не пришлось двигать). Как только дом сдали, уточнили замеры и сразу приступили к рабочим чертежам — так ремонт начался практически без задержек.
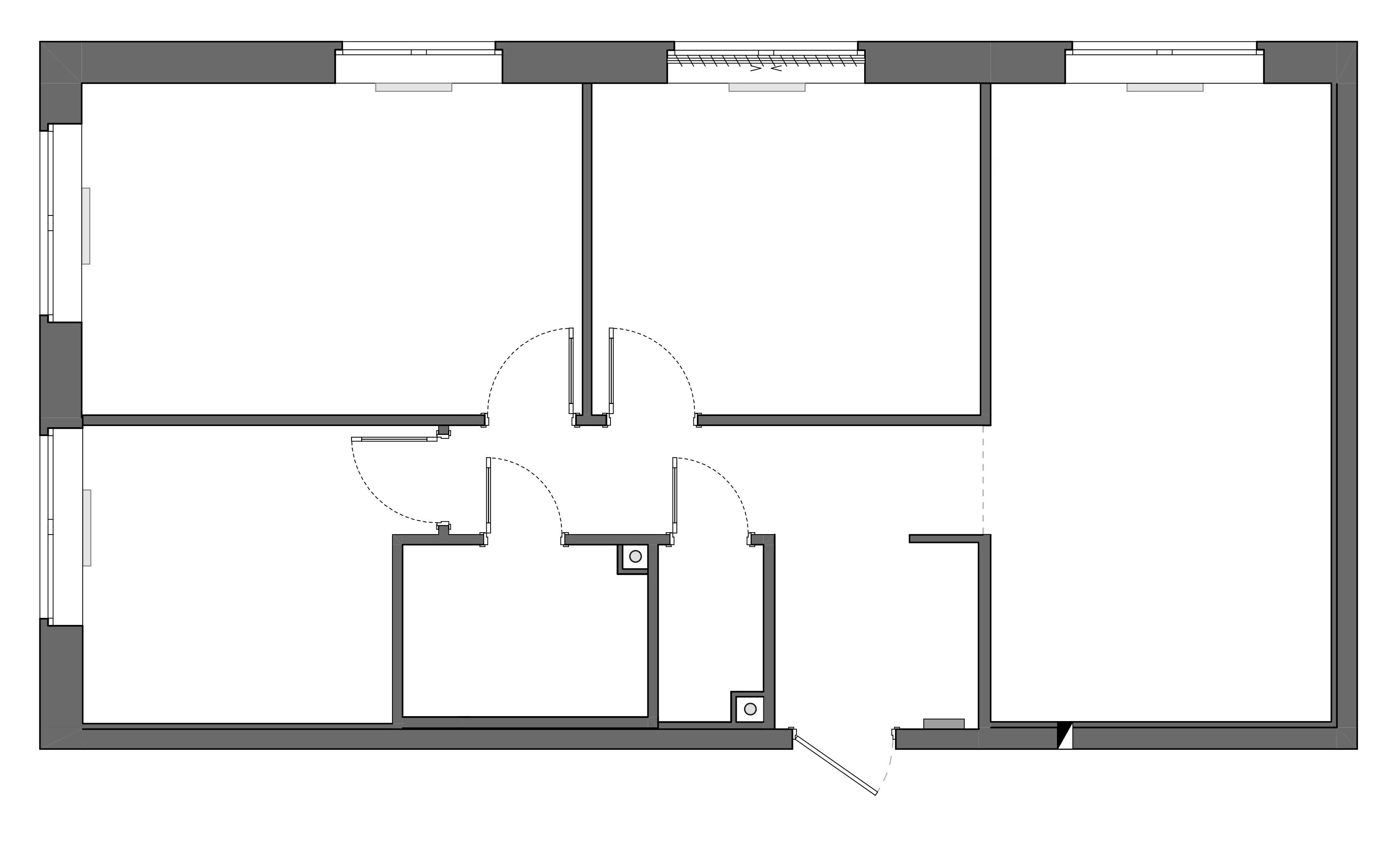
Переосмысление планировки Единственное, что решили изменить, — демонтировать стандартную сантехкабину и полностью перераспределить коммуникации санузлов: возвели новые перегородки и компактно проложили коммуникации. В спальне появилась гардеробная, скрытая за перегородкой — это решение убрало визуальный шум (никакой одежды на виду) и добавило функциональности.Интерьер как художественное полотно Заказчики хотели спокойный интерьер с яркими акцентами, и мы обыграли эту идею через «живописные мазки»: - Гостиная: нейтральная отделка стен подчеркивают насыщенные детали — диван сочного оттенка, стол со сложным подстольем, плетёные светильники ручной работы и картина, написанная специально для этого интерьера. Цвета перетекают один в другой, создавая ощущение гармонии. - Спальня: приглушённые зелёные тона, зона кровати в природных оттенках для релаксации, а гардеробная — как продолжение цветовой палитры, где один оттенок мягко сменяется другим. - Прихожая: зональное деление цветом — насыщенный синий с узорной плиткой у входа сменяется спокойными тонами в коридоре, визуально расширяя пространство. Дополнили зеркалом (практично + эффект глубины) и декором из сруба дерева для акцента.
Детская и кабинет: удобство и индивидуальность - Детская: фотообои на двух стенах создают уютный «уголок», а продуманная система хранения вмещает все вещи и игрушки. - Кабинет: нейтральная гамма с приглушённым синим, эргономичная организация рабочего места и деревянная карта мира — не только для вдохновения, но и для отметок путешествий.
Детали, которые оживляют пространство - Игра объёмов: лепнина на стенах добавляет рельефа и глубины. - Узорная плитка — деликатный, но выразительный акцент в нейтральной палитре. - Сложные формы мебели и светильников контрастируют с лаконичной отделкой.
Итог: проект соединил рациональность (чёткие сроки, продуманные зоны) и творчество — каждый элемент здесь работает на атмосферу, где комфортно жить, работать и отдыхать.